TEL:0512-66587506 18913192605

蘇州金尚視覺科技有限公司
聯系人:陸旺坤
電話:0512-66587506
手機:13815263408
地址:蘇州市吳中區南官渡路521號3幢5樓







特點:
1、高密度LED陣列分布與底部
2、在要求大面積打光場合可替代無影光
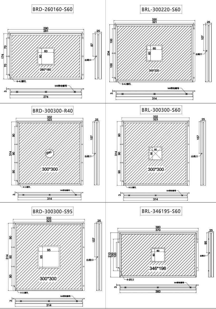
3、開孔大小,位置,尺寸可靈活定制
4、超薄設計,開孔大小、形狀、尺寸、位置可定制.
5、實現大幅面均勻照明.
6、燈珠均勻分布在四周經過導光板形成擴散的光線.
7、安裝方式多種可選.
8、采用特殊的散熱結構設計.
應用領域:
大面積電路板元器件字符檢測
產品定位檢測
物體四邊外形尺寸測量
透明物體雜質檢測







??